DXD Series - Stratus Multi-Deck

French Doors / Standard 44” Depth

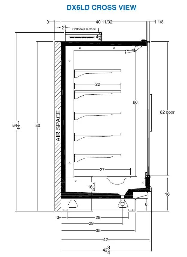
The Kysor Warren DX6LD and DX7LD are medium-temperature, glass-door multideck merchandisers from the Stratus line, purpose-built for the dairy department and equally well-suited for beverage, packaged deli, and natural/organic sections where energy efficiency and product integrity are paramount priorities. Both models share the DX series' reputation as a retail standard, distinguished by their large throat opening and sizable display area — but the addition of glass doors sets the LD models apart by significantly reducing refrigerated air loss, driving down energy costs by at least 75% over an open case while maintaining the consistent product temperatures today's shoppers and operators demand. The DX7LD delivers a discharge air temperature of 34°F with off-cycle defrost, scaling from 4- to 12-foot sections and offering up to 63.97 square feet of total display area and nearly 144 cubic feet of cubic capacity, making it one of the most spacious door cases in the Kysor Warren lineup. The DX6LD mirrors this scalable architecture in a narrower-depth cabinet, giving retailers the flexibility to match case depth to aisle width without sacrificing pack-out or visual impact. Both models carry full certifications from AHRI, NSF, UL, and the U.S. Department of Energy and are DOE 2017 compliant, reflecting Kysor Warren's commitment to sustainable, forward-thinking refrigeration design. Engineered with reliability, efficiency, and labor savings at their core, these cases are built to endure for years — making the DX6LD and DX7LD a smart long-term investment for any retailer looking to balance energy performance with high-volume dairy and perishable merchandising.

Model Height Recommended # of Shelves Spec Sheet
DX6LD 80" Base + 5 or 6 Download
DX7LD 84-1/2" Base + 6 or 7 Download